Назначение: Защита от аварийных режимов работы трехфазных электродвигателей и других электроустановок переменного тока
Цена (без учета НДС): По запросу руб.
Реле защиты и мониторинга Смартреле-МД-4 предназначено для установки в цепях питания трехфазных электродвигателей и других электроустановок переменного тока промышленной частоты 50 Гц напряжением 230/400 В для их защиты от аварийных режимов работы. При косвенном подключении через трансформаторы тока реле могут использоваться в электролиниях на любое напряжение.
Защитное отключение осуществляется путем размыкания или замыкания управляющего ключа (режим программируется потребителем), включаемого в цепь катушки управления контактора или автоматического выключателя.
Для получения и анализа накопленной информации предусмотрено подключение реле к персональному компьютеру.
Управляющий контакт реле коммутирует электрическую цепь переменного тока от 0.01 до 2 А при напряжении до 420 В, допускаетcя перегрузка до 25 А в течение времени не более 0.5 сек.
Питание реле осуществляется от сети переменного тока напряжением в пределах от 180 до 420 В частотой 50±2 Гц.
Длина кабеля от реле до датчиков тока (вариант с разъемным соединением датчиков) составляет 1100±100 мм (допустимо наращивать до 20 м).
Средний срок службы — не менее 5 лет.
Реле защиты и мониторинга Смартреле-МД-4 соответствуют ТУ 3425-001-79200647-2014.
Реле обеспечивает функции защиты следующих видов:
Рис. 1. Общий вид реле
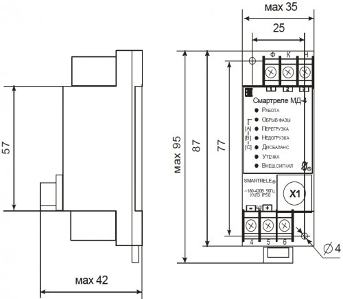
Рис. 2. Габаритные и установочные размеры электронного блока реле

Рис. 3. Схема подключения
| Потребляемая мощность | Не более 1 Вт |
| Климатическое исполнение | УХЛ3 |
| Установочные размеры, габаритные размеры | Не более 42х35х92 мм (без датчиков тока) |
Реле Смартреле-МД-4 изготавливается девяти номиналов: 2.5, 5, 12.5, 25, 50, 125, 250, 500, 1250, соответствующих пределу уставки номинального тока в амперах.
Функции реле могут расширяться подключением дополнительных устройств.
|
Пределы контролируемых токов |
Пределы регулирования режимных уставок по току отсечки Iо |
Пределы регулирования режимных уставок по току максимальной защиты Imax |
Пределы регулирования режимных уставок по току перегрузки Inom, недогрузки Imin , дисбалансу токов Dmax и току предупредительной сигнализации Iпс |
Габаритные размеры датчиков тока |
Масса реле |
|||||||
|
Номинал |
от (А) |
до (А) |
от (А) |
до (А) |
от (А) |
до (А) |
от (А) |
до (А) |
внутр (мм) |
внеш (мм) |
высота (мм) |
не более (кг) |
|
Смартреле МД-4-2.5 |
0 |
20 |
0 |
20 |
0 |
5 |
0.2 |
2.5 |
10 |
40 |
15 |
0.25 |
|
Смартреле МД-4-5 |
0 |
40 |
0 |
40 |
0 |
10 |
0.4 |
5 |
10 |
40 |
15 |
0.25 |
|
Смартреле МД-4-12.5 |
0 |
100 |
0 |
100 |
0 |
25 |
1 |
12.5 |
10 |
40 |
15 |
0.25 |
|
Смартреле МД-4-25 |
0 |
200 |
0 |
200 |
0 |
50 |
2 |
25 |
24 |
54 |
18 |
0.35 |
|
Смартреле МД-4-50 |
0 |
400 |
0 |
400 |
0 |
100 |
4 |
50 |
24 |
54 |
18 |
0.35 |
|
Смартреле МД-4-125 |
0 |
1000 |
0 |
1000 |
0 |
250 |
10 |
125 |
24 |
54 |
18 |
0.35 |
|
Смартреле МД-4-250 |
0 |
2000 |
0 |
2000 |
0 |
500 |
20 |
250 |
42 |
76 |
20 |
0.55 |
|
Смартреле МД-4-500 |
0 |
4000 |
0 |
4000 |
0 |
1000 |
40 |
500 |
42 |
76 |
20 |
0.55 |
|
Смартреле МД-4-1250 |
0 |
10000 |
0 |
9950 |
0 |
2500 |
100 |
1250 |
65 |
112 |
22 |
0.95 |
Чтобы правильно подобрать реле защиты и мониторинга Смартреле-МД-4, узнать стоимость реле защиты и мониторинга Смартреле-МД-4, купить Смартреле-МД-4, вам достаточно позвонить по телефону +7(4812)209-311 или написать по электронной почте info@td-electroprivod.ru.